


GRS identification number: #1085183
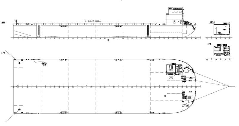
LOA 66 m
Beam 15,5 m
Draft 3,14 m
Built in year 2008
Class : Lloyd's Register
Flag : Netherlands
Gross Tonnage of 1.033 and Nett Tonnage of 309
Deadweight : 3.250 metric tonnes
Cranes / Gears installed
Engines : Unknown Builder