166m / 73.38m Pontoon / Barge / #1139789

Want to contact this ship’s charterer?
Join now.

More from this charterer

GRS.Offshore Renewables GmbH


VESSEL INFO

  • Offer type Ship for charter
  • Type Barge
  • Year of construction 2026
  • Length 166m
  • Width 73.38m
  • Depth 9.15m
  • PRICE Price on request

DESCRIPTION

GRS identification number: #1139789

KEY FEATURES
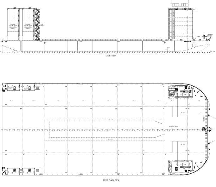
·Dimensions 166 x 73.38 x 9.15 m
·Submerging capacities of 22.5 m above deck
·Heavy cargo up to approx. 57.500 t
·Deck strength of 35 t/m2
·Ballast pump capacity of 22.500 m3/hr
·4 removable floatation towers
·Hybrid operation battery/generators/shore power
LOA 166 m
Beam 73.38 m
Draft 9.15 m
Built in year 2026
Flag : Norway
Free Deck area about 11,750m² with a deck strength of 35 metric tonnes per square meter
Total 32 berths

Please register or log in to contact this broker

Register Log in

VESSEL LOCATION

We cannot retreive the current location of this vessel. Please contact the charterer for location information.

Hide Show
Clear selection