





GRS identification number: #1092683
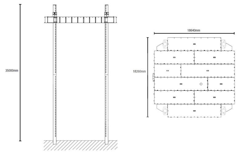
LOA 18,3 m
Beam 18,3 m
Draft 1,52 m
Class : (Germanischer Lloyd)
Flag : Saint Vincent & The Grenadines
Gross Tonnage of 150
4 legs of 35m length
Free Deck area about 324m² with a deck strength of 15 metric tonnes per square meter