





GRS identification number: #1096441
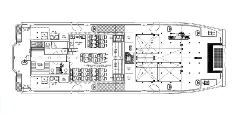
LOA 26,9 m
Beam 9 m
Built in year 2018
Class : Lloyd's Register
Flag : Jersey
Gross Tonnage of 210
Total passenger capacity 30
Deadweight : 45 metric tonnes
Speed : 25,5 knots
Engines : 4 x Volvo Penta / Volvo Penta AB D13, 2.060 kw, 2.250 rpm, Propellers 4 Directional (Other Position)