





GRS identification number: #1139849
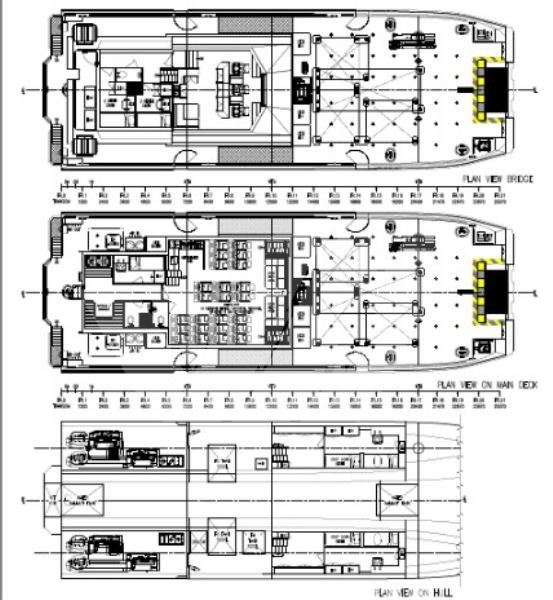
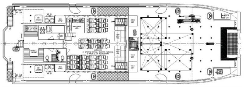
LOA 27 m
Beam 9,2 m
Draft 1,6 m
Design is : BMT NigelGee26m
Flag : Great Britain
Total passenger capacity 24
Deadweight : 45 metric tonnes
Dynamic Positioning of class : Yes
1 Crane / Gear installed with a max lifting capacity of 6,36 tons
1 Crane / Gear installed with a max lifting capacity of ,53 tons
Speed : 26 knots
Engines : 4 x Volvo Penta D-13 700 DST, 515 kw, Propellers 4 x
Auxiliaries Engines : 2 x 27 kw