









GRS identification number: #1077500
General details as follows:
LOA 23,95 m
Beam 9,54 m
Draft 2,1 m
Bollard Pull : 21 tons
Speed : 9 knots
Engines : 2 x Caterpillar / Caterpillar Inc C32, 1.640 kw, 2.100 rpm, Propellers 1 Fixed Pitch (Port Side) + 1 Fixed Pitch (Starboard)
Auxiliaries Engines : 2 Perkins 93 kw
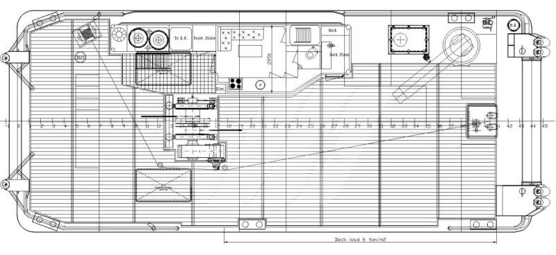
Free Deck area about 122m² with a deck strength of 6 metric tonnes per square meter
Capable of supplies of 69m³ Fuel Oils and 22m³ FW
Built in year 2012
Design is : Eurocarrier2395
Class : Bureau Veritas
Flag : Gibraltar
Gross Tonnage of 164 and Nett Tonnage of 49
Deadweight : 133 metric tonnes